Описание
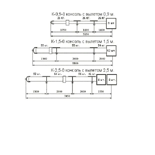
Консоль удлиненная с вылетом 1,5м/500кг (без грузов) используется в качестве составляющего компонента грузоподъемного механизма, применяется при проведении ремонта на высоте, реставрирования фасадов, монтаже кровли, установке кондиционеров и водостоков.
Особенности оборудования:
Грузоподъемность консоли составляет 500 кг.
Съемные опоры обеспечивают надежную установку.
Простой и быстрый монтаж, не требующий наличия специального инструмента.
Регулировка необходимого расстояния вылета проводится с помощью выдвижной балки.
Болты, расположенные в нижней части проушине подвеса, обеспечивают надежное крепление.
Качественное антикоррозийное покрытие позволяет осуществлять работу при наличии агрессивных факторов окружающей среды.
В разобранном виде модель компактна и удобна при транспортировке и хранении.
Износостойкость и долговечность модели.
Оптимальное соотношение стоимости и качества продукции.




