Описание
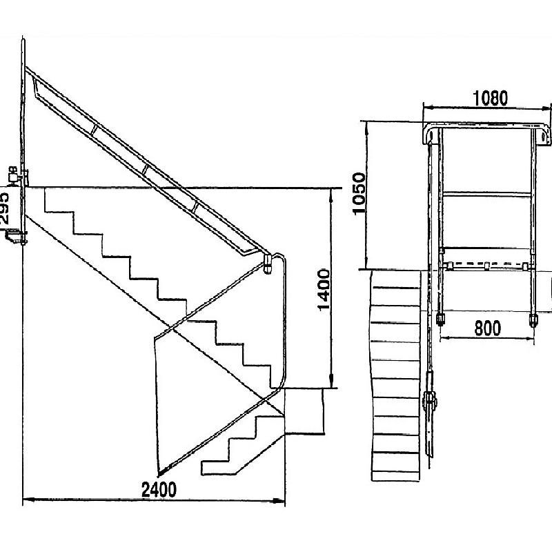
Временное ограждение лестничных маршей и площадок выполняет защитную функцию. Чаще всего им пользуются на стройплощадках, в зонах проведения монтажных работ. Это типовая конструкция, предотвращающая вероятность несчастных случаев. Ее применение является неотъемлемой составляющей безопасности труда.
К достоинствам такого ограждения можно отнести:
прочность;
удобство использования;
надежность.
Оно предотвращает несчастные случаи при проведении монтажных и демонтажных работ. Площадка рассчитана на многолетнюю эксплуатацию, ее производство выполнено с соблюдением требований ГОСТ. Стойки временного ограждения устойчивы к деформациям, производитель предоставляет на него гарантию. Его удобно транспортировать и хранить. Главное во время установки добиться надежной фиксации. При необходимости заграждающую конструкцию можно перемещать с места на место.
Покупка рекомендована организациям, специализирующимся на проведении строительных работ.



