Описание
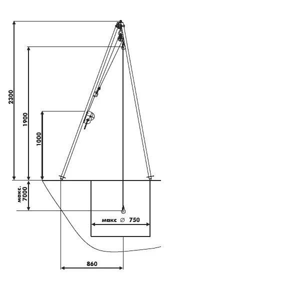
При помощи перегрузочной треноги модели ТП-250 с лебедкой производится подъем, опускание и удерживание груза ниже или выше плоскости основания устройства. Используется при разгрузочных и погрузочных работах, в строительстве и ремонте.
Компактные размеры обеспечивают работу треножника в ограниченном пространстве. Три стойки, из которых состоит тренога, соединены друг с другом кронштейнами. На втулке кронштейна расположена скоба для подвески блока. Устройство с замком в нижней части стоек фиксирует треногу в сложенном состоянии.
Эксплуатировать треногу можно как в закрытом помещении, так и на открытом пространстве, но при температуре не ниже -40°С. Ее нельзя применять для перемещения ядовитых грузов, взрыво- или пожароопасных предметов. Помещение, в котором будет расположено устройство, не должно быть насыщено парами щелочей и кислот. Транспортировать людей в треноге категорически запрещено!






