Описание
ТЕХНИЧЕСКИЕ ДАННЫЕ МАТЕРИАЛОВ ИЗДЕЛИЙ
НОМЕНКЛАТУРА и ОБОЗНАЧЕНИЯ ГИДРОШПОНОК
ВОЗМОЖНЫЕ ВИДЫ СОЕДИНЕНИЙ ГИДРОШПОНОК
1. Накладные конструкции ДШВ-0, ДШВ-0-УГЛ


ОПИСАНИЕ


| Устройство | Компенсатор | Перемещение, мм | Размеры, мм | Нагрузка, МПа | |||
![]() | ![]() | ![]() | А | В | |||
| ДШВ-0/035 ДШВ-0-УГЛ/035 | В0-032 | 2 | 2 | 3 | 35 | 110 72 | 0,20 |
| В1-032 | 5 | 5 | 3 | ||||
| В2-032 | 1 | 2 | 3 | ||||
| ДШВ-0/040 ДШВ-0-УГЛ/040 | В0-038 | 5 | 5 | 4 | 40 | 115 77 | 0,18 |
| В1-038 | 6 | 6 | 4 | ||||
| В2-038 | 2 | 2 | 4 | ||||
| ДШВ-0/050 ДШВ-0-УГЛ/050 | В0-049 | 9 | 9 | 6 | 50 | 125 82 | 0,14 |
| В1-049 | 10 | 10 | 6 | ||||
| В2-049 | 2 | 2 | 6 | ||||
| ДШВ-0/060 ДШВ-0-УГЛ/060 | В0-060 | 12 | 12 | 8 | 60 | 135 97 | 0,10 |
| В1-060 | 15 | 15 | 8 | ||||
| В2-060 | 3 | 3 | 8 | ||||
| ДШВ-0/070 ДШВ-0-УГЛ/070 | В0-068 | 14 | 14 | 10 | 70 | 145 107 | 0,06 |
УПАКОВКА
Алюминиевый профиль — 3 м.
Компенсатор ТЭП — бухта 30 м.
2. Накладные конструкции ДШО-0, ДШО-0-УГЛ


ОПИСАНИЕ
Усиленная накладная конструкция АКВАСТОП® тип ДШО-0. Аналогично накладному типу ДШВ, монтируется непосредственно на финишное покрытие пола. Конструкция выдерживает пешеходные нагрузки и легковой транспорт с невысокой интенсивностью движения.
МОНТАЖНЫЕ СХЕМЫ


РАЗМЕРЫ И ДОПУСТИМЫЕ ПЕРЕМЕЩЕНИЯ
| Устройство | Компенсатор | Перемещение, мм | Размеры, мм | Нагрузка, МПа | |||
![]() | ![]() | ![]() | А | В | |||
| ДШО-0/035 ДШО-0-УГЛ/035 | В0-032 | 2 | 2 | 3 | 35 | 155 95 | 0,30 |
| В1-032 | 5 | 5 | 3 | ||||
| В2-032 | 1 | 2 | 3 | ||||
| ДШО-0/040 ДШО-0-УГЛ/040 | В0-038 | 5 | 5 | 4 | 40 | 160 100 | 0,30 |
| В1-038 | 6 | 6 | 4 | ||||
| В2-038 | 2 | 2 | 4 | ||||
| ДШО-0/050 ДШО-0-УГЛ/050 | В0-049 | 9 | 9 | 6 | 50 | 170 110 | 0,25 |
| В1-049 | 10 | 10 | 6 | ||||
| В2-049 | 2 | 2 | 6 | ||||
| ДШО-0/060 ДШО-0-УГЛ/060 | В0-060 | 12 | 12 | 8 | 60 | 180 120 | 0,25 |
| В1-060 | 15 | 15 | 8 | ||||
| В2-060 | 3 | 3 | 8 | ||||
| ДШО-0/070 ДШО-0-УГЛ/070 | В0-068 | 14 | 14 | 10 | 70 | 190 130 | 0,25 |
УПАКОВКА
Алюминиевый профиль — 3 м.
Компенсатор ТЭП — бухта 30 м.
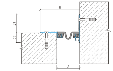
3. Закладные конструкции ДШМ-15, ДШМ-15-УГЛ


ОПИСАНИЕ
Обустройство деформационных швов с высотой конструкции пола от 15 мм. Монтируется в пространство плиточного клея. Уменьшенная ширина крепежного узла компенсатора позволило минимизировать видимую часть профильной конструкции. По мере износа компенсатор может быть легко заменен.
МОНТАЖНЫЕ СХЕМЫ


РАЗМЕРЫ И ДОПУСТИМЫЕ ПЕРЕМЕЩЕНИЯ
| ||||||||||||||||||||||||||||||||||||||||||||||||||||||||||||||||||||
УПАКОВКА
Алюминиевый профиль — 3 м.
Компенсатор ТЭП — бухта 30 м.
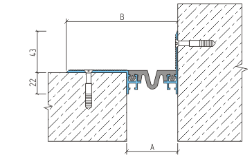
4. Закладные конструкции ДШВ-15, ДШВ-15-УГЛ


ОПИСАНИЕ
Минимальная высота алюминиевых направляющих ДШВ-15 позволяет смонтировать профильную конструкцию в пространство плиточного клея. В отличие от ДШМ-15 возможно конфигурирование со всеми типами компенсаторов.
МОНТАЖНЫЕ СХЕМЫ


РАЗМЕРЫ И ДОПУСТИМЫЕ ПЕРЕМЕЩЕНИЯ
| Устройство | Компенсатор | Перемещение, мм | Размеры, мм | Нагрузка, МПа | ||||
![]() | ![]() | ![]() | А | В | C | |||
| ДШВ-15/025 ДШВ-15-УГЛ/030 | В0-032 | 2 | 2 | 3 | 25 | 35 | 125 | 0,20 |
| В1-032 | 5 | 5 | 3 | |||||
| В2-032 | 1 | 2 | 3 | |||||
| ДШВ-15/030 ДШВ-15-УГЛ/035 | В0-038 | 5 | 5 | 4 | 30 | 40 | 130 | 0,18 |
| В1-038 | 6 | 6 | 4 | |||||
| В2-038 | 2 | 2 | 4 | |||||
| ДШВ-15/040 ДШВ-15-УГЛ/045 | В0-049 | 9 | 9 | 6 | 40 | 50 | 140 | 0,14 |
| В1-049 | 10 | 10 | 6 | |||||
| В2-049 | 2 | 3 | 6 | |||||
| ДШВ-15/050 ДШВ-15-УГЛ/055 | В0-060 | 12 | 12 | 8 | 50 | 60 | 150 | 0,10 |
| В1-060 | 15 | 15 | 8 | |||||
| В2-060 | 3 | 3 | 8 | |||||
| ДШВ-15/060 ДШВ-15-УГЛ/065 | В0-068 | 14 | 14 | 10 | 60 65 | 65 | 160 115 | 0,05 |
УПАКОВКА
Алюминиевый профиль — 3 м.
Компенсатор ТЭП — бухта 30 м.
5. Закладные конструкции ДШВ-20, ДШВ-20-УГЛ


ОПИСАНИЕ
Закладные профильные конструкции ДШВ-20 возможно использовать в деформационных швах на полах с покрытием из керамогранитной плитки большого размера, и других конструкций пола высотой от 20 мм. Компенсатор изготовлен из термоэластопласта (ТЭП) и устойчив к воздействию маслам, бензину и моющим средствам.
МОНТАЖНЫЕ СХЕМЫ


РАЗМЕРЫ И ДОПУСТИМЫЕ ПЕРЕМЕЩЕНИЯ
| Устройство | Компенсатор | Перемещение, мм | Размеры, мм | Нагрузка, МПа | ||||
![]() | ![]() | ![]() | А | В | C | |||
| ДШВ-20/025 ДШВ-20-УГЛ/030 | В0-032 | 2 | 2 | 3 | 25 | 35 | 125 | 0,20 |
| В1-032 | 5 | 5 | 3 | |||||
| В2-032 | 1 | 2 | 3 | |||||
| ДШВ-20/030 ДШВ-20-УГЛ/035 | В0-038 | 5 | 5 | 4 | 30 | 40 | 130 | 0,18 |
| В1-038 | 6 | 6 | 4 | |||||
| В2-038 | 2 | 2 | 4 | |||||
| ДШВ-20/040 ДШВ-20-УГЛ/045 | В0-049 | 9 | 9 | 6 | 40 | 50 | 140 | 0,14 |
| В1-049 | 10 | 10 | 6 | |||||
| В2-049 | 2 | 3 | 6 | |||||
| ДШВ-20/050 ДШВ-20-УГЛ/055 | В0-060 | 12 | 12 | 8 | 50 | 60 | 150 | 0,10 |
| В1-060 | 15 | 15 | 8 | |||||
| В2-060 | 3 | 3 | 8 | |||||
| ДШВ-20/060 ДШВ-20-УГЛ/065 | В0-068 | 14 | 14 | 10 | 60 65 | 65 | 160 115 | 0,05 |
УПАКОВКА
Алюминиевый профиль — 3 м.
Компенсатор ТЭП — бухта 30 м.
6. Закладные конструкции ДШО-24, ДШО-24-УГЛ


ОПИСАНИЕ
Закладной вариант использования универсальной профильной конструкции типа ДШО. Высота конструкции пола от 24 мм. Алюминиевые направляющие поставляются с перфорацией. Возможны комбинации со всеми компенсаторами серии ДШВ.
МОНТАЖНЫЕ СХЕМЫ


РАЗМЕРЫ И ДОПУСТИМЫЕ ПЕРЕМЕЩЕНИЯ
| Устройство | Компенсатор | Перемещение, мм | Размеры, мм | Нагрузка, МПа | ||||
![]() | ![]() | ![]() | А | В | C | |||
| ДШО-24/030 ДШО-24-УГЛ/030 | В0-032 | 2 | 2 | 3 | 30 | 35 | 156 95 | 0,25 |
| В1-032 | 5 | 5 | 3 | |||||
| В2-032 | 1 | 2 | 3 | |||||
| ДШО-24/040 ДШО-24-УГЛ/040 | В0-038 | 5 | 5 | 4 | 40 | 44 | 161 100 | 0,25 |
| В1-038 | 6 | 6 | 4 | |||||
| В2-038 | 2 | 2 | 4 | |||||
| ДШО-24/050 ДШО-24-УГЛ/050 | В0-049 | 9 | 9 | 6 | 50 | 54 | 171 110 | 0,20 |
| В1-049 | 10 | 10 | 6 | |||||
| В2-049 | 2 | 3 | 6 | |||||
| ДШО-24/060 ДШО-24-УГЛ/060 | В0-060 | 12 | 12 | 8 | 60 | 64 | 181 120 | 0,20 |
| В1-060 | 15 | 15 | 8 | |||||
| В2-060 | 3 | 3 | 8 | |||||
| ДШО-24/070 ДШО-24-УГЛ/070 | В0-068 | 14 | 14 | 10 | 70 | 74 | 191 130 | 0,15 |
УПАКОВКА
Алюминиевый профиль — 3 м.
Компенсатор ТЭП — бухта 30 м.
7. Закладные конструкции ДШВ-35, ДШВ-35-УГЛ


ОПИСАНИЕ
АКВАСТОП® тип ДШВ-35 предназначены для окаймления деформационных швов с высотой конструкции пола от 35 мм. Крепежный узел компенсатора герметичный, и препятствует попаданию внутрь шва влаги и грязи, а также легко, позволяет заменить компенсатор по мере износа.
МОНТАЖНЫЕ СХЕМЫ


РАЗМЕРЫ И ДОПУСТИМЫЕ ПЕРЕМЕЩЕНИЯ
| Устройство | Компенсатор | Перемещение, мм | Размеры, мм | Нагрузка, МПа | ||||
![]() | ![]() | ![]() | А | В | C | |||
| ДШВ-35/025 ДШВ-35-УГЛ/030 | В0-032 | 2 | 2 | 3 | 25 30 | 35 | 125 80 | 0,18 |
| В1-032 | 5 | 5 | 3 | |||||
| В2-032 | 1 | 2 | 3 | |||||
| ДШВ-35/030 ДШВ-35-УГЛ/035 | В0-038 | 5 | 5 | 4 | 30 35 | 40 | 130 85 | 0,15 |
| В1-038 | 6 | 6 | 4 | |||||
| В2-038 | 2 | 2 | 4 | |||||
| ДШВ-35/040 ДШВ-35-УГЛ/045 | В0-049 | 9 | 9 | 6 | 40 45 | 50 | 140 95 | 0,15 |
| В1-049 | 10 | 10 | 6 | |||||
| В2-049 | 2 | 3 | 6 | |||||
| ДШВ-35/050 ДШВ-35-УГЛ/055 | В0-060 | 12 | 12 | 8 | 50 55 | 60 | 150 105 | 0,10 |
| В1-060 | 15 | 15 | 8 | |||||
| В2-060 | 3 | 3 | 8 | |||||
| ДШВ-35/060 ДШВ-35-УГЛ/065 | В0-068 | 14 | 14 | 10 | 60 65 | 65 | 160 115 | 0,05 |
УПАКОВКА
Алюминиевый профиль — 3 м.
Компенсатор ТЭП — бухта 30 м.
8. Закладные конструкции ДШВ-50, ДШВ-50-УГЛ


ОПИСАНИЕ
Закладные профильные конструкции АКВАСТОП® тип ДШВ-50 — обустройство деформационных швов с высотой конструкции пола от 50 мм. Эксплуатация во внутренних помещениях: пешеходные переходы, торговые и офисные центры с предполагаемой нагрузкой на профильную конструкцию до 0,15 МПа.
МОНТАЖНЫЕ СХЕМЫ


РАЗМЕРЫ И ДОПУСТИМЫЕ ПЕРЕМЕЩЕНИЯ
| Устройство | Компенсатор | Перемещение, мм | Размеры, мм | Нагрузка, МПа | ||||
![]() | ![]() | ![]() | А | В | C | |||
| ДШВ-50/025 ДШВ-50-УГЛ/030 | В0-032 | 2 | 2 | 3 | 25 30 | 35 | 125 80 | 0,18 |
| В1-032 | 5 | 5 | 3 | |||||
| В2-032 | 1 | 2 | 3 | |||||
| ДШВ-50/030 ДШВ-50-УГЛ/035 | В0-038 | 5 | 5 | 4 | 30 35 | 40 | 130 85 | 0,15 |
| В1-038 | 6 | 6 | 4 | |||||
| В2-038 | 2 | 2 | 4 | |||||
| ДШВ-50/040 ДШВ-50-УГЛ/045 | В0-049 | 9 | 9 | 6 | 40 45 | 50 | 140 95 | 0,15 |
| В1-049 | 10 | 10 | 6 | |||||
| В2-049 | 2 | 3 | 6 | |||||
| ДШВ-50/050 ДШВ-50-УГЛ/055 | В0-060 | 12 | 12 | 8 | 50 55 | 60 | 150 105 | 0,10 |
| В1-060 | 15 | 15 | 8 | |||||
| В2-060 | 3 | 3 | 8 | |||||
| ДШВ-50/060 ДШВ-50-УГЛ/065 | В0-068 | 14 | 14 | 10 | 60 65 | 65 | 160 115 | 0,05 |
УПАКОВКА
Алюминиевый профиль — 3 м.
Компенсатор ТЭП — бухта 30 м.






